Wynajem
Budynek handlowo – usługowy mieści się w Warszawie przy ul. Odkrytej 1a (Tarchomin).
Pawilon usytuowany jest bezpośrednio przy ulicy, w pobliżu znajduje się przystanek autobusowy.
Budynek został usytuowany na działce zgodnie z warunkami określonymi Dz.U. nr 75/2002 o powierzchni 1523 m2.
Powierzchnia użytkowa pawilonu wynosi ok. 1795,27 m2.
Na potrzeby przedmiotowego pawilonu handlowo – usługowego przewidziano 15 miejsc parkingowych
od strony osiedla oraz 17 miejsc (w tym jedno miejsce dla niepełnosprawnych) między krawędzią jezdni
i chodnikiem na zewnątrz, przy ul. Odkrytej.
Budynek zaprojektowano w technologii szkieletowo – płytowej ze ścianami żelbetonowymi oraz bloków betonowych w piwnicach oraz ścianami ceramicznymi na wyższych kondygnacjach.
Stropodach – ocieplany z płyt korytkowych ze spadkiem do środka budynku. Wysokość budynku 12m.
Budynek częściowo podpiwniczony o dwóch poziomach parteru, posiada 2 klatki schodowe. Wszystkie kondygnacje są spięte w środkowej części budynku zespołem komunikacji pionowej z windą (również dla niepełnosprawnych). Na każdym poziomie kondygnacji znajdują się pomieszczenia socjalno-magazynowe.
Obiekt w "stanie deweloperskim".
OGÓLNE INFORMACJE O KONSTRUKCJI BUDYNKU USŁUGOWO-HANDLOWEGO
- Ławy, stropy i ściany fundamentowe – żelbetowe (częściowo z bloków betonowych)
- Ściany zewnętrzne – ceramiczne, ocieplane
- Ściany klatek schodowych – żelbetowe
- Ścianki działowe i kominy wentylacyjne – ceramiczne
- Stropy żelbetowe
- Stropodach z płyt korytkowych, ocieplonych, pokrytych papą zgrzewalną
- Schody żelbetowe
- Stolarka okienna – PCV i aluminium
- Stolarka drzwiowa – aluminium, PCV, drewniana i stalowa (p.poż)
- Tynki wewnętrzne – cementowo –wapienne oraz gipsowe
- Tynki zewnętrzne – cienkowarstwowe z dociepleniem styropianem 14cm.
- Posadzki – płytki typu gres
- W budynku przewidziano instalację wod.-kan., p. poż., c.o. , elektryczną, odgromową, teletechniczną oraz wentylacji mechanicznej.
Oferta wynajmu powierzchni handlowo – usługowo – magazynowej w pawilonie przy ul. Odkrytej 1a (Tarchomin) Warszawa. Obiekt w "stanie deweloperskim".
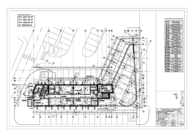
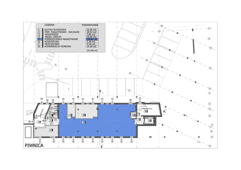
1) Przedmiotem najmu są pomieszczenia znajdujące się w kondygnacji piwnicznej.
Pomieszczenia z przeznaczeniem magazynowym – powierzchnia 165 m2
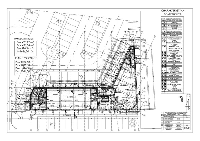
2) Przedmiotem najmu są pomieszczenia znajdujące się w kondygnacji parter.
Pomieszczenia z przeznaczeniem handlowo- usługowym – powierzchnia 150 m2 (WYNAJĘTE)
3) Przedmiotem najmu są pomieszczenia znajdujące się w kondygnacji parter – półpiętro (1,2m wyżej). Pomieszczenia z przeznaczeniem handlowo- usługowym – powierzchnia 195m2
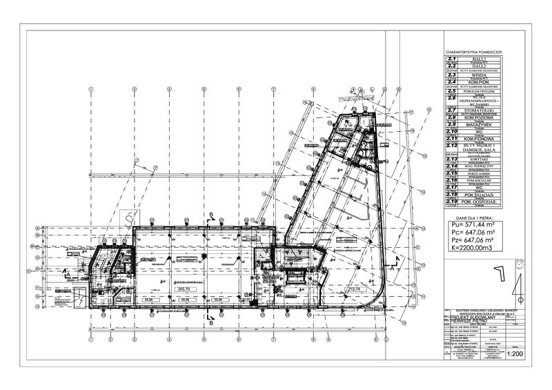
4) Przedmiotem najmu są pomieszczenia znajdujące się w kondygnacji piętro „I”.
Pomieszczenia z przeznaczeniem handlowo-usługowym - powierzchnia 275 m2
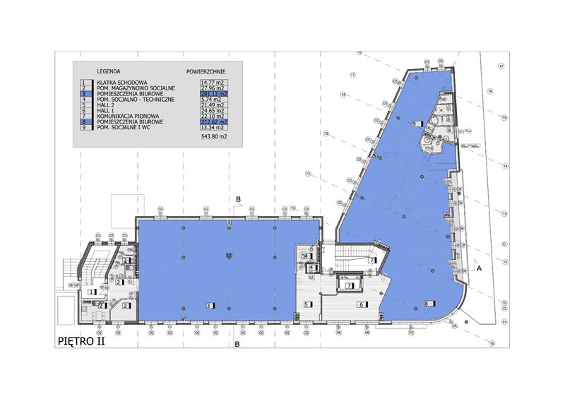
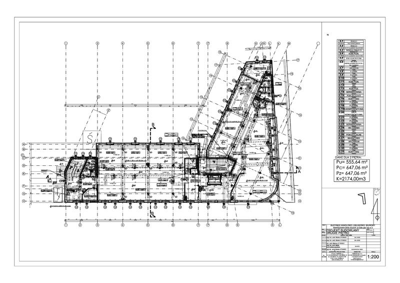
6) Przedmiotem najmu są pomieszczenia znajdujące się w kondygnacji piętro „II”.
Pomieszczenia z przeznaczeniem biurowym – powierzchnia 275 m2 (WYNAJĘTE)
7) Przedmiotem najmu są pomieszczenia znajdujące się w kondygnacji piętro „II” – półpiętro (1,2m wyżej). Pomieszczenia z przeznaczeniem biurowym – powierzchnia 255 m2 (WYNAJĘTE)
Opłaty dodatkowe:
Opłata za użytkowanie „części wspólnych” pawilonu usługowo - handlowego 8zł/m2 wynajmowanej powierzchni. W budynku przewidziana jest ochrona-monitoring.
„Pz” – powierzchnia zabudowy - 496,34 m2
„Pu” – powierzchnia użytkowa - 1795,27 m2
„Pc” – powierzchnia całkowita - 2072,3 m2
„K” – kubatura - 6641,00 m3
Dane poszczególnych kondygnacji:
Piwnica:
„Pz” – powierzchnia zabudowy - 496,34 m2
„Pu” – powierzchnia użytkowa - 237,14 m2
„Pc” – powierzchnia całkowita - 281,78 m2
„K” – kubatura - 828,00 m3
Parter i przyziemie:
„Pz” – powierzchnia zabudowy - 496,34 m2
„Pu” – powierzchnia użytkowa - 423,17 m2
„Pc” – powierzchnia całkowita - 496,34 m2
„K” – kubatura - 1686,00 m3
Piętro „ I” :
„Pz” – powierzchnia zabudowy - 647,12 m2
„Pu” – powierzchnia użytkowa - 579,32 m2
„Pc” – powierzchnia całkowita - 647,12 m2
„K” – kubatura - 2200,00 m3
Piętro „II” :
„Pz” – powierzchnia zabudowy - 647,12 m2
„Pu” – powierzchnia użytkowa - 555,64 m2
„Pc” – powierzchnia całkowita - 647,12 m2
„K” – kubatura - 2174,00 m3















